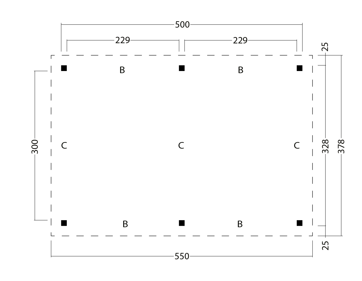
FLACHDACH RED CLASS ODENSE XL TYP 1 550x378cm
FLACHDACH RED CLASS ODENSE XL TYP 1 550x378cm
FLACHDACH RED CLASS ODENSE XL TYP 1 550x378cm
PRODUKTSPEZIFIKATIONEN:
Holzart Red Class
Trio verleimte Pfosten 14x14cm
Trio verleimte Träger 14x14cm
Dachkonstruktion Pfetten 6.5x17.5cm
Sparren 6.5x14cm
Dachsparren 1.8x14.5cm
Wandanschlussprofile 28x19.5cm + Gesims 28x9cm
Inkl. Befestigungsmaterialien und Montageanweisung
Die Zusammenstellungen 1 bis 12 sind inkl. EPDM
46.1020 Red Class Flachdach XL 550x378cm imprägniert
Optional Basis XL:
Dachverkleidung aluminium 46.1020T
Dachverkleidung anthrazit 46.1030T
Betonpfeiler 6 St.
Produktspezifikationen
|
Ausführung gehobelt Behandlung imprägniert Dachtyp Flachdach Holzart Red Class Tiefe 378,00 cm Breite 550,00 cm Höhe 266,00 cm |
Modular yes Inbegriffen EPDM Kernfrei nein Gegengleich aufbauen yes Dacheindeckung inbegriffen EPDM Selbst nach Maß zuschneiden yes Befestigungsmaterialien inbegriffen yes |
FLACHDACH RED CLASS ODENSE XL TYP 1 550x378cm






