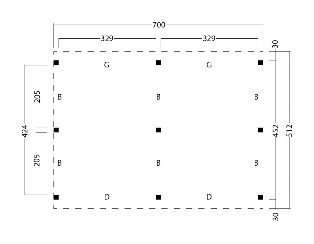
RED CLASS OFF. SCHEUNE BILLUND XXL TYP1 700x512cm
RED CLASS OFFENE SCHEUNE BILLUND XL TYP1 700x512cm
RED CLASS OFFENE SCHEUNE BILLUND XL TYP1 700x512cm
PRODUKTSPEZIFIKATIONEN:
Holzart Red Class
Trio verleimte Standpfosten 14x14cm
Trio verleimte Träger 14x14cm
Dachkonstruktion Sparrendach 6.5x17.5cm
Dachsparren 1.8x14.5cm
Wandanschlussprofil und Dachfirst 2.8x19cm
Inkl. Befestigungsmaterialien und Montageanweisung
46.1010 Billund XXL 700x512cm imprägniert
Optional Basis XXL:
Dachziegelprofilplatten* 46.1010DZ
Easypan* 46.1010EZ
Aquapan* 46.1010AZ
Dachrinnen verzinkt 46.1010GV
Erhältlich in verschiedenen Farben, obige Artikelnummer bezieht sich auf die schwarze Farbe.
Bei einem offene scheune benötigen Sie nur den mittleren Pfosten (siehe Pläne),
wenn Sie sich für eine Variante ohne Rückwand entscheiden.
Produktspezifikationen
|
Ausführung gehobelt Behandlung imprägniert Dachtyp Laube Holzart Red Class Tiefe 512,00 cm Breite 700,00 cm |
Höhe 436,00 cm Modular yes Kernfrei nein Gegengleich aufbauen yes Dacheindeckung inbegriffen Optional Selbst nach Maß zuschneiden yes Befestigungsmaterialien inbegriffen yes |
RED CLASS OFFENE SCHEUNE BILLUND XL TYP1 700x512cm






